Power system automation is something that will prevent electrical thefts, accidents and also provide automatic billing and load management. In this work we have actually built three systems -- a basic system, enhanced system and further enhanced system. The last two systems have communication capabilities which will transfer meter readings from a subscriber to the main sub station. During this process electric thefts or accidents are detected by performing computation on these readings and appropriate action is taken. Signals are transmitted using only one wire and hence on total we have three wires including the neutral and the power line. This is have low power and low cost circuit.
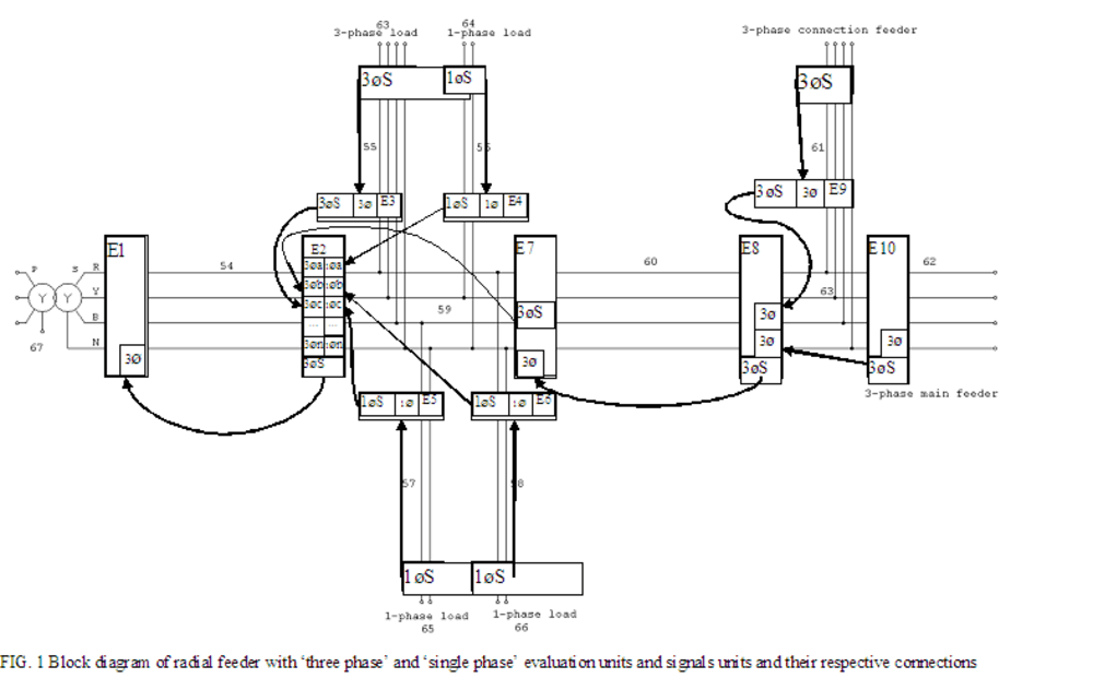
Figure 1 shows the internal block diagram for the basic circuit. This is just an analog module which will keep monitoring the status of the power line and if some abnormalities occur immediately it will de energize that part of power line where those abnormalities are taking place. Figure 2 shows the block diagram of the entire radial feeder system. Here we have different loads connected at the subscriber end and at the electrical poles we have a master unit processing the data. Figure 3 shows the actual circuit fabricated on a printed circuit board which we had given a demo in an workshop organised by our college.
Like this entry?
-
About the Entrant
- Name:Rakesh Kumar Palani
- Type of entry:teamTeam members:Dr LM Saini, Monoj kumar Pandey, Harish Balaga
- Hardware used for this entry:DSO, Micro controllers, ICs and other componentsSoftware used for this entry:LT Spice
- Patent status:patented


