Contrivance of automobiles and further advancements in technology have been a revelation to the proliferating world. Many systems comprise an automobile including the prime mover, transmission system, braking system, control system etc; The automobile is energized using specific fuels. Some part of the energy from the fuel gets used to move the vehicle. The rest of the energy is lost to engine and drive-line inefficiencies and idling. There are concepts where the dissipated energy is reused using regenerative braking technology to power the vehicle accessories or recharge the batteries.
On similar grounds, the energy applied while braking can be utilized and retarding momentum or kinetic energy can be used to actuate an air conditioning system which otherwise goes as frictional losses. Normally, the air conditioning system depends on the engine and thus load on the engine will be increased when the AC is switched on. Thus, the efficiency of the engine reduces. An alternative way of actuating an air conditioning system during braking cycles and removal of load on the engine can enhance its efficiency.Thus, this work aims at removal of air conditioning load on the engine during every braking cycle and uses the energy dissipated while braking to enhance cooling. Hence, we can expect an improved efficiency of the automotive system.
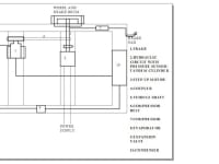
The schematic diagram shown depicts the layout and allocation of the components used. In operation, the shaft and wheel assembly is run by the AC motor since an engine is not fabricated in the prototype. Since the shaft and motor are co-axial, they are connected through coupler. The motor gives a high momentum to the rotating wheel. During every braking cycle, upon pressurizing the brake pedal, with the help of sensors and the central control system, 12V supply is given to the magnetic clutch of the compressor, blower and the condenser fan through the car batteries. Upon actuation of the magnetic clutch and utilizing the retarding momentum or stored kinetic energy while slowing down, the air conditioning operation begins as the compressor starts taking the load. The compressor can pump the refrigerant only when its rotating, hence the AC working takes place till the shaft comes to complete stop upon permanent braking. Contrary to the normal working of compressors by coupling with the engine, we make use of retarding momentum of the continuously rotating drive shaft to rotate the compressor. Instead of pressing the AC button inside the compartment, the brake pedals when pressed in every braking cycles does the same work of supplying the AC components with 12V power supply.
Thus in every braking cycle definite amount of work is done in removing the heat from the compartment without relying on the engine power. Arrangements can be made to disconnect the conventional AC system running with the aid of engine in every braking cycle. Thus, in every braking cycle the air conditioning is done with the help of recovered kinetic energy and hence load on engine decreases which gives rise to increased efficiency of the vehicle.
Like this entry?
-
About the Entrant
- Name:Suprith Jagannath
- Type of entry:teamTeam members:SUPRITH JAGANNATH SUJITH YADAV U RAHUL D VIGNESH N
- Software used for this entry:SOLID EDGE
- Patent status:none


